Купить квартиру возле метро Петровщина

1-комнатная, 35.1/23.6/- м2, Этаж 13 из 18, 2014 г.
г. Минск, ул. Рафиева, д. 54а
Московский район
Петровщина
Продаётся светлая и уютная квартира-студия (евро-однушка) в аккуратном и ухоженном доме 2014 года постройки. Чистый подъезд, домофон, спокойная атмосфера. Планировка и характеристики: - Общая площадь - 35,1 м2 - Жилая пл…
173
Дата обновления: 20.12.2025
245 810 руб
83 000$
7 000 руб/м²
2 365$/м²
3-комнатная, 68/50.9/10 м2, Этаж 7 из 21, 2020 г.
г. Минск, Дзержинского просп., 94
Московский район
Петровщина
Новая квартира с дизайнерским ремонтом рядом с метро! ️ Если вы ищете современное, стильное и продуманное жильё в одном из самых удобных районов Минска - эта квартира для вас. - Блочный дом 2020 года постройки расположен…
59
Дата обновления: 17.12.2025
604 170 руб
204 000$
8 880 руб/м²
3 000$/м²
1-комнатная, 33.05/17.07/7.11 м2, Этаж 5 из 9
г. Минск, Правда газеты просп., 14
Московский район
Петровщина
Идеальное расположение для жизни и аренды ️ Однокомнатная квартира в шаговой доступности от станции метро «Петровщина». - Общая площадь квартиры составляет 33,05 кв.м., жилая площадь равна 17,07 кв.м., кухня имеет 7,11 …
53
Дата обновления: 17.12.2025
214 720 руб
72 500$
6 500 руб/м²
2 194$/м²
1-комнатная, 45.5/18/9.7 м2, Этаж 7 из 18, 2014 г.
г. Минск, Максима Горецкого, 7
Фрунзенский район
Петровщина
Продается теплая 1-комн. квартира в микрорайоне «Сухарево» с просторной кухней и хорошим ремонтом. До метро "Петровщина" и метро "Каменная горка" - 10 минут общественным транспортом. Входная металлическая дверь. Счетчи…
52
Дата обновления: 16.12.2025
266 250 руб
89 900$
5 850 руб/м²
1 976$/м²
1-комнатная, 73.2/61.9/10 м2, Этаж 2 из 9, 2014 г.
г. Минск, Правда газеты просп., 1
Московский район
Петровщина
Отличная квартира для жизни и инвестиций с 2 санузлами ️Продается квартира на комфортном 2 этаже в 9-этажном доме, с общей площадью 73,2 кв.м. Планировка с возможностью разделения на две 1-комнатных квартиры. Два санузла…
77
Дата обновления: 10.12.2025
429 140 руб
144 900$
5 860 руб/м²
1 980$/м²
3-комнатная, 66.6/38.1/8.5 м2, Этаж 3 из 12, 1992 г.
г. Минск, Любимова просп., 36/2
Московский район
Петровщина
Продается 3-комнатная квартира в кирпичном двенадцатиэтажном доме на проспекте Любимова, 36 /2 Квартира с ремонтом и полностью готова к проживанию Материал стен: кирпич Год постройки: 1992 Этаж: 3 из 12 Общая площа…
2157
Дата обновления: 09.12.2025
350 950 руб
118 500$
5 270 руб/м²
1 779$/м²
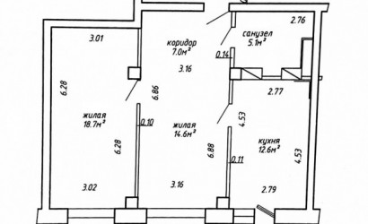
3-комнатная, 63.5/41.4/8.4 м2, Этаж 5 из 9, 1981 г.
г. Минск, Газеты Правда, 60/2
Московский район
Петровщина
Мир станет ярче сквозь собственные окна! Уютная 3-комнатная квартира недалеко от метро «Петровщина» Дом 1981 г. (чешский проект), 5/9 эт. 63,5 м² (с лоджиями — 67,4 м²): — просторная кухня 8,4 м², — комнаты н…
97
Дата обновления: 06.12.2025
295 570 руб
99 800$
4 650 руб/м²
1 572$/м²
3-комнатная, 71/50.9/- м2, Этаж 7 из 21, 2020 г.
г. Минск, Дзержинского, 94
Московский район
Петровщина
Эта квартира — больше чем просто метры. Это возможность. Пространство, залитое светом, где паркетная доска встречается с изящной плиткой, символизируя гармонию уюта и практичности. Мы завершили все черновые работы, чтоб…
89
Дата обновления: 06.12.2025
604 170 руб
204 000$
8 510 руб/м²
2 873$/м²
2-комнатная, 45.4/34.3/- м2, Этаж 7 из 12, 2022 г.
г. Минск, Семашко ул., 4/Е
Московский район
Петровщина
Современная квартира в ЖК на ул. Семашко ️ Просторная квартира с дизайнерским евроремонтом в современном доме - идеальный вариант для тех, кто ценит стиль, комфорт и качество жизни. - Квартира расположена в новостройке с…
116
Дата обновления: 01.12.2025
337 330 руб
113 900$
7 430 руб/м²
2 509$/м²
1-комнатная, 29.6/11.4/7.1 м2, Этаж 1 из 9, 1991 г.
г. Минск, просп. газеты Звязда, д. 56
Московский район
Петровщина
Однокомнатная квартира на пр-те Газеты «Звязда». Не угловая, расположена на удобном 1 высоком этаже, закрытый тамбур на две квартиры. -Общая площадь 29,6 м.кв., -Светлая комната 11,4 м.кв, -Уютная кухня 7,1 м.кв. -Окна …
215
Дата обновления: 21.11.2025
207 020 руб
69 900$
6 990 руб/м²
2 361$/м²
2-комнатная, 49.9/27.8/8.5 м2, Этаж 2 из 10, 2015 г.
г. Минск, ул. Академика Карского, д. 19
Фрунзенский район
ЖК "Вишневый сад"
Петровщина
В продаже 2-х комнатная квартира на втором этаже с мебелью и техникой, полностью готовая к проживанию в благоустроенном районе города по улице Карского, 19. Квартира с современным качественным ремонтом в доме 2015 года п…
214
Дата обновления: 20.11.2025
324 300 руб
109 500$
6 500 руб/м²
2 194$/м²
3-комнатная, 71/50.9/- м2, Этаж 7 из 21, 2020 г.
г. Минск, Дзержинского просп., 94
Московский район
Петровщина
Продается новая 3-комнатная квартира с современным ремонтом по индивидуальному дизайн-проекту. Квартира находится на финальном этапе ремонта, в ней завершены все черновые и чистовые отделочные работы. Ремонт делался дл…
164
Дата обновления: 13.11.2025
604 170 руб
204 000$
8 510 руб/м²
2 873$/м²
4-комнатная, 76.1/50.2/8.3 м2, Этаж 3 из 9, 1980 г.
г. Минск, Газеты Звязда пр-т 35
Московский район
Петровщина
Четырёхкомнатная квартира с тремя лоджиями и выходом в парк по адресу: г. Минск, проспект Газеты Звязда, дом 35! Просторная квартира с продуманной планировкой! О КВАРТИРЕ: - Общая площадь — 79,1 кв. м - Высота потолков …
30
399 820 руб
135 000$
5 250 руб/м²
1 774$/м²
3-комнатная, 90.2/48.3/10.4 м2, Этаж 8 из 9, 2008 г.
г. Минск, Дзержинского просп., 80
Московский район
Петровщина
3-х комнатная квартира в Минске, проспект Дзержинского, 80. Метро Петровщина. 90,2 м.кв. по СНБ. Три лоджии. Окна выходят как на проспект так и во двор. Чистый подъезд. Просторный двор. В пешей доступности 3 детских са…
921
Дата обновления: 25.10.2025
517 980 руб
174 900$
5 740 руб/м²
1 939$/м²
3-комнатная, 76.5/56.8/- м2, Этаж 11 из 20, 2005 г.
г. Минск, Правда газеты просп., 44
Московский район
Петровщина
3-комнатная квартира с ремонтом в монолитном доме рядом с метро Петровщина. о Квартире: - Хозяева с любовью и заботой обеспечили квартиру всем необходимым для комфортной жизни. - Квартира на 11-ом этаже, сквозь окна кото…
633
Дата обновления: 10.10.2025
443 940 руб
149 900$
5 800 руб/м²
1 959$/м²
5-комнатная, 101.6/66/12.2 м2, Этаж 1 из 9, 1982 г.
г. Минск, Пр.Любимова 34/1
Московский район
Петровщина
Пятикомнатная квартира в доме после капремонта (2024 г)., дом утеплен , заменены все трубы, в подъезде ремонт месяц назад тоже сделан . Просторный коридор,два коридора, светлая кухня в 12м², два санузла, душевая комната …
451
Дата обновления: 22.08.2025
503 470 руб
170 000$
4 960 руб/м²
1 673$/м²