Продажа коттеджей в Городеи

0-комнатная, 90/53.6/12 м2, (11 соток), 1 эт.
Минская область, пгт. Городея, Школьная ул.
Дом 90 кв.м. состоит из двух комнат, коридора, кухни и большой прихожей. Полностью заменена проводка, пластиковые окна, новая крыша и лаги. Полы переложены полностью. Коммуникации: Водоснабжение центральное, газ централь…
421
Дата обновления: 04.02.2026
81 750 руб
28 500$
910 руб/м²
317$/м²
2-комнатная, 72.5/48.9/- м2, (10 соток), 1 эт., 1968 г.
Минская область, пгт. Городея, Интернациональная, 51
Продается одноэтажный кирпичный дом в г.п. Городея общей площадью 72,5 кв. м2, жилая площадь — 48,9 м2. В доме расположены 2 жилые комнаты, санузел,небольшая кухня, веранда. Построен в 1968 году, требует обновлений, но в…
466
Дата обновления: 13.08.2025
41 100 руб
14 329$
570 руб/м²
198$/м²
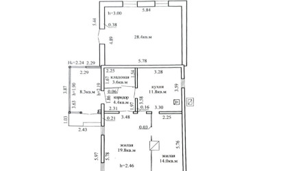
3-комнатная, 57/32.5/11.3 м2, (9 соток), 1 эт., 1953 г.
Минская область, пгт. Городея, Комарова,5/2
Квартира в блокированном кирпичном жилом доме 1953 года. ​ ​Дом находится в г.п. Городея, Несвижский район, Минская область 90 км от Минска, 10 км от Несвижа, 20 км от Мира. ​ ​ ​ ​ В доме проведены следующие коммуникаци…
3420
38 330 руб
13 000$
670 руб/м²
228$/м²