Продажа коттеджей в Бузунах

0-комнатная, 189.08/86.91/- м2, (12.63 соток), 2 эт., 2021 г.
Минская область, д. Бузуны, Лесная ул.
Предлагаем вашему вниманию уникальную возможность приобрести незавершенный дом общей площадью 189 кв.м. с участком 12 соток в частной собственности в живописной деревне Бузуны Воложинского района. (Раковское направление)…
661
Дата обновления: 04.12.2025
246 130 руб
85 000$
1 300 руб/м²
450$/м²
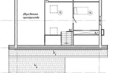
3-комнатная, 167.2/95.9/- м2, (12.61 соток), 1 эт., 2023 г.
Минская область, д. Бузуны, Лесная, 35
Продаётся просторный дом в Минской области, д. Бузуны, ул. Лесная (Раковский с/с, Воложинский р-н) Продаётся современный и тёплый дом площадью 167,2 м2 в уютной деревне Бузуны. Отличный вариант как для постоянного прожи…
81
Дата обновления: 14.11.2025
434 360 руб
150 000$
2 600 руб/м²
897$/м²
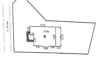
0-комнатная, 206.5/62.8/15.56 м2, (12.6 соток), 3 эт., 2020 г.
Минская область, д. Бузуны, Лесная ул.
Продаётся 3-х этажный жилой дом (НЗКС) в д. Бузуны Воложинского района, всего в 25 км от МКАД в Раковском направлении. Дом располагается в новой коттеджной застройке, в живописном и экологически чистом месте, рядом с лес…
180
Дата обновления: 03.10.2025
249 030 руб
86 000$
1 210 руб/м²
416$/м²
0-комнатная, 74.1/46.1/9.8 м2, (15 соток), 2 эт., 2024 г.
Минская область, д. Бузуны, Луговая ул.
Адрес: Минская область, Воложинский район, Раковский сельсовет, д.Бузуны, ул. Луговая, 50 Описание дома: Продается современный двухэтажный каркасный дом общей площадью 74,1м2 на участке 15 соток. Дом построен по каркасно…
435
Дата обновления: 30.07.2025
130 300 руб
44 999$
1 760 руб/м²
607$/м²