Продажа домов в деревне в Кривом Селе

0-комнатная, 56.3/32.8/9.4 м2, (7.5 соток), 1 эт.
Минская область, д. Кривое Село, Первомайская ул.
Комфортных половина жилого дома в живописном месте возле Вилейского водохранилища ️Крепкий дом 1974 г.п. с не большим участком - отличный вариант как для дачи так и для круглогодичного проживания. - В агрогородке есть по…
41
Дата обновления: 05.02.2026
43 600 руб
15 200$
770 руб/м²
270$/м²
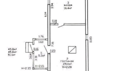
0-комнатная, 51.1/40.8/9 м2, (10.73 соток), 1 эт.
Минская область, д. Кривое Село, Полевая ул.
Комфортный дом возле Вилейского водохранилища! ️ Крепкий дом с большим участком - отличный вариант как для дачи, так и для круглогодичного проживания. - Бревенчатый дом с новой шиферной крышей расположился на участке 11…
125
Дата обновления: 15.01.2026
77 160 руб
26 900$
1 510 руб/м²
526$/м²