Купить гараж в Беларуси

17.2 м2, 2018 г.
г. Минск, ул. Некрасова, д. 47
Советский район
Академия наук
Продам ДЁШЕВО машиноместо в наземном многоуровневом комплексе Некрасова 47 (площадь Бангалор). Находится на 2 этаже 6-этажного паркинга. Площадь автоместа от 17,2 м2. Высота комплекса на въезде от 2,3 м. Круглосуточная о…
1331
Дата обновления: 20.12.2025
43 м2, 2022 г.
г. Минск, Автомобилистов, 12/18
Центральный район
Академия наук
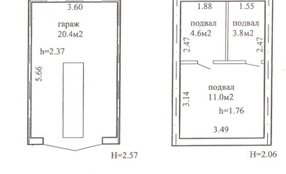
Продается гараж с подвальным помещением в ГСПК «Горизонт-Авто», общей площадью 43м2. Идеально подойдет для частного бизнеса или для складского хранения. Высота потолка наземного помещения 3,13м, размер - 3,70 х 5,94. В…
17
Дата обновления: 18.12.2025
13.5 м2, 2004 г.
г. Минск, ул. Восточная, д. 131
Советский район
Продается машиноместо в крытом современном паркинге. г.Минск, ул.Восточная, 131. Удобный заезд и выезд по электронному ключу через шлагбаум. Круглосуточная охрана, есть система видео-наблюдения, лифт, освещение, туалет…
737
Дата обновления: 15.12.2025
23.9 м2, 1993 г.
г. Гомель, Владимирова, ГСК-36
Продается уютный гараж площадью 23,9 м², построенный из прочного кирпича в 1993 году. Этот надежный объект станет отличным решением для хранения вашего автомобиля и других ценностей. Гараж оборудован металлическими вор…
581
Дата обновления: 10.12.2025
13.5 м2, 2023 г.
г. Минск, ул. Станислава Монюшко, д. 6
Ленинский район
Продается машиноместо по ул. Монюшко,  д 6. Общая площадь 13.5 кв.м., Находится на втором этаже шестиэтажного крытого паркинга. На первом этаже коммерческие помещения. Паркинг оборудован лифтом, шлагбаумом. Отличное расп…
562
Дата обновления: 09.12.2025
17 м2, 1971 г.
г. Витебск, Чкалова, 11/2
Продается гараж в Витебске по адресу, ул. Чкалова 11/2 ( гараж находится во дворе) Фундамент - бетонный, сборный Стены - кирпичные оштукатурены, толщ. 440мм Крыша - совмещенная рулонная Ворота - железные Полы - бетонн…
36
Дата обновления: 07.12.2025
13.5 м2, 2023 г.
г. Минск, ул. Станислава Монюшко, д.6
Ленинский район
Машиноместо, 3 этаж, А80, звоните, пишите, если не доступен пишите на Вайбер или ватцап
73
Дата обновления: 26.11.2025
Найдено объектов: 126
19.5 м2, 1986 г.
г. Гомель, Ирининская, 8
Продаётся кирпичный гараж в самом центре города по улице Ирининская 8В. Общая площадь с учетом ямы 22 м.кв. Длина 5.59 м Ширина 3.47м
67
Дата обновления: 24.11.2025
13.9 м2, 2021 г.
г. Минск, ул. Татарская, д. 4
Центральный район
Фрунзенская
Продаётся машино-место в наземном паркинге жилого комплекса «Комфорт Парк» по адресу: г. Минск, ул. Татарская, 4. Общая площадь - 13,9 м². УДОБСТВА: - система видеонаблюдения, работающая 24/7; - доступ по чип-карте, т…
39
19.5 м2
г. Витебск, Лазо
Продается гараж в ГПК "Строитель". Отличное месторасположение. ( Район Лазо) Договор №117/19 от 17.07.2025 ОДО «Юриэлт», УНП 101214439 Лицензия Министерства юстиции Республики Беларусь № 02240/8 от 17.02.2005 (бессрочная…
141
Дата обновления: 21.10.2025
31.52 м2, 1972 г.
г. Витебск, Офицерская
Продается большой, сухой гараж в центре города, возле Центрального рынка, отличный подъезд. Гараж с ямой. Договор №111/19 от 16.07.2025 ОДО «Юриэлт», УНП 101214439 Лицензия Министерства юстиции Республики Беларусь № 0224…
169
Дата обновления: 21.10.2025
18 м2, 1990 г.
г. Минск, ул. Инженерная, д.
Заводской район
Могилевская
Гараж 6 на 3, есть яма глубиной 1м, погреб 2 на 2, свет, кирпичное строение. Есть постоянный клиент под аренду.
237
Дата обновления: 17.10.2025
19 м2, 2010 г.
г. Витебск, ул. Старобабиновичский тр. , д.
Продам гараж в ГПК 5 ( Старобабиновичский тракт). Состояние хорошее. Крыша перекрыта, пол залит бетоном в этом году, ворота железные. Подьездные пути хорошие. Все платежи закрыты до конца года.
305
Дата обновления: 17.10.2025
20 м2, 1982 г.
г. Барановичи, 50 лет ВЛКСМ, 29
Продается гараж по ул. 50 лет ВЛКСМ, 29 блок 54. Общая площадь гаража – 20 м². Размер бокса – 6.20 м * 3.20 м. Ворота – 2.6 м * 2 м. Гараж в хорошем состоянии: - стены оштукатурены; - пол - стяжка; - подвал сухой, обрабо…
161
Дата обновления: 17.10.2025
18 м2, 1990 г.
г. Гомель, Междугородняя 5а
Продам гараж ГСПК 20 улица Междугородняя 5А (Советский район) рядом Магазин КСК. Хороший толстый металл, гараж на фундаменте (не на земле). Пол бетонный. Ямы нет, но при желании можно сделать. В кооперативе есть бесплатн…
151
Дата обновления: 13.10.2025
22 м2, 2022 г.
г. Жодино, Богуслово поле
Продам гараж для хранение резины и других вещей которые мешаю в доме или сезонные вещи, для ремонта машины или ставить автомобиль. Есть возможность расширить гараж. Отопление электрическое или если есть желание можно сде…
118
Дата обновления: 02.10.2025
16.4 м2, 1974 г.
г. Гомель, ул. Базовая, д. 4
Хороший, чистый гараж №331. Площадь 16.4, со смотровой ямой и подвалом для хранения припасов. Крыша не течет, ворота утеплены, стяжка новая, оштукатурен и покрашен. Электричество есть, долгов нет.
202
Дата обновления: 12.09.2025
23.4 м2, 1999 г.
г. Минск, ул. Гинтовта, д. 51/2
Уручье
Продаётся гараж на 2 машины в подвальном помещении со смотровой ямой и погребом в трёх минутах ходьбы от строительного рынка "Уручье".
405
Дата обновления: 06.09.2025
18.9 м2, 1997 г.
г. Минск, ул. Радиальная, д. 14
Заводской район
Автозаводская
Капитальный гараж,кирпичные стены,бетонная плита перекрытия,В частной собственности,уютное тихое место в двух остановок от метро и партизанского проспекта,под снос не когда не пойдет утверждено испалкомам.Хорошие инвести…
603
Дата обновления: 05.09.2025
12.4 м2, 2015 г.
г. Минск, ул. Беломорская, д. 21
Советский район
Академия наук
Продается место в подземном паркинге в доме по адресу: ул. Беломорская, дом 21 (ЖК «Флагман»). Общая площадь - 12,4 кв. м. Лифт опускается в паркинг!!! Паркинг отапливается. Установлены камеры видеонаблюдения, дежурит ко…
258
Дата обновления: 26.08.2025
23 м2, 1995 г.
г. Бобруйск, г.Бобруйск кооператив №18 \\\"Бастион\\\"
Продаеся капитальный гараж. Кирпичный, жб перекрытия. В хорошем состоянии. Имеется яма, подвал под всем гаражом.
343
Дата обновления: 25.08.2025
52.7 м2
г. Барановичи, Войкова
Продается просторный кирпичный гараж в ГСК «Авиатор - 2» (р-н Авиагородок). Общая площадь – 52.7 м², размер бокса 6*9 м. Есть смотровая яма с погребом, площадью – 46 м². Перекрытия крыши – железобетонные, частично подши…
214
Дата обновления: 25.08.2025
31 м2, 1968 г.
г. Минск, ул. Ангарская, д. 100
Заводской район
Могилевская
Продам гараж в хорошем состоянии, площадь 31 м2, вмещает 2 автомобиля, есть смотровая яма, 2 подвала. Можно использовать под СТО.
281
Дата обновления: 16.08.2025
61 м2, 2000 г.
г. Минск, ул. Могилевская, д. 49
Можно частями... 100% готовности. Плитка, окна, вода, канализация, интернет(оптоволокно), 380В, отопление. Имеются офисные помещения по 8 м2(с юридическими адресами) входит в цену. Фото нет, заняты имуществом. Освобожу…
283
Дата обновления: 12.08.2025
36 м2, 1990 г.
пгт. Болбасово, Парковая 410 А-157
Продам гараж в г.п. Болбасово. S-35,6. Один собственник. Приватизирован. Чистый, в отличном состоянии, крыша хорошо залита-течи нет, бетонный пол. Глубокая смотровая яма, хороший погреб. Есть электричество. Ворота желез…
171
Дата обновления: 02.08.2025
34.6 м2, 2005 г.
г. Минск, ул. Слободская, д.
Московский район
Продаётся гараж напротив авторынка «Малиновка». Долгое время стоял без дела, решили продать. Стены крепкие, не подтекает. Вероятно, можно будет организовать под временное проживание. Рядом СТО и ремонт автостёкол. Гараж …
501
Дата обновления: 15.07.2025
57.8 м2, 2007 г.
г. Жодино, Барсуковская, 17/5
Капитальный гараж с подвалом. ГСК №32, ул. Барсуковская, 17/5 Электричество 220В. Год ввода в эксплуатацию 2007. Козырек над входом, вентиляция в подвале. Долгов по взносам нет. Торг при осмотре реальным покупателям. Чис…
408
Дата обновления: 14.07.2025
42.2 м2, 2002 г.
г. Минск, ул. Автомобилистов, д. 12
Центральный район
Продается аккуратный гараж в перспективном месте, удаленность от ЖК "Левада" - 4 км., от ЖК "Северный Берег" - 3 км. Гараж отлично подойдет для склада, хранения личного автомобиля, мотоцикла или хранения личных вещей. Те…
417
Дата обновления: 30.06.2025
18.7 м2, 1999 г.
г. Гомель, ул. Чернышевского, д. 1л/166
Гараж капитальный двухуровневый в ГСПК - 10 по ул Чернышевского 1Л/166 Площадь - 18,7 м Пол и крыша - железобетонные плита Крыша перекрыта бронированным Технониколем Подвал всегда сухой!!! Электричество есть Возл…
1384
Дата обновления: 28.06.2025
12 м2, 2025 г.
г. Минск, ул. Нововиленская, д. 61
Центральный район
Продается Машиноместо в ЖК \\\"Левада\\\" номер 158 размер3х4 возле дома №61
520
Дата обновления: 11.06.2025