Купить 2-комнатную квартиру, Слоним, Коссовский Тракт ул., 80

Просмотры: 22 всего, 23 за месяц, 23 за неделю
  • Комнат:
    2-комнатная
  • Площадь общая:
    51.1 м2
  • Площадь жилая:
    31 м2
  • Площадь кухни:
    7.9 м2
  • Этаж:
    3 из 5
  • Год постройки:
    1993

101 200 руб
или 1 980 руб/м2
34 000$
или 665$/м2
Описание

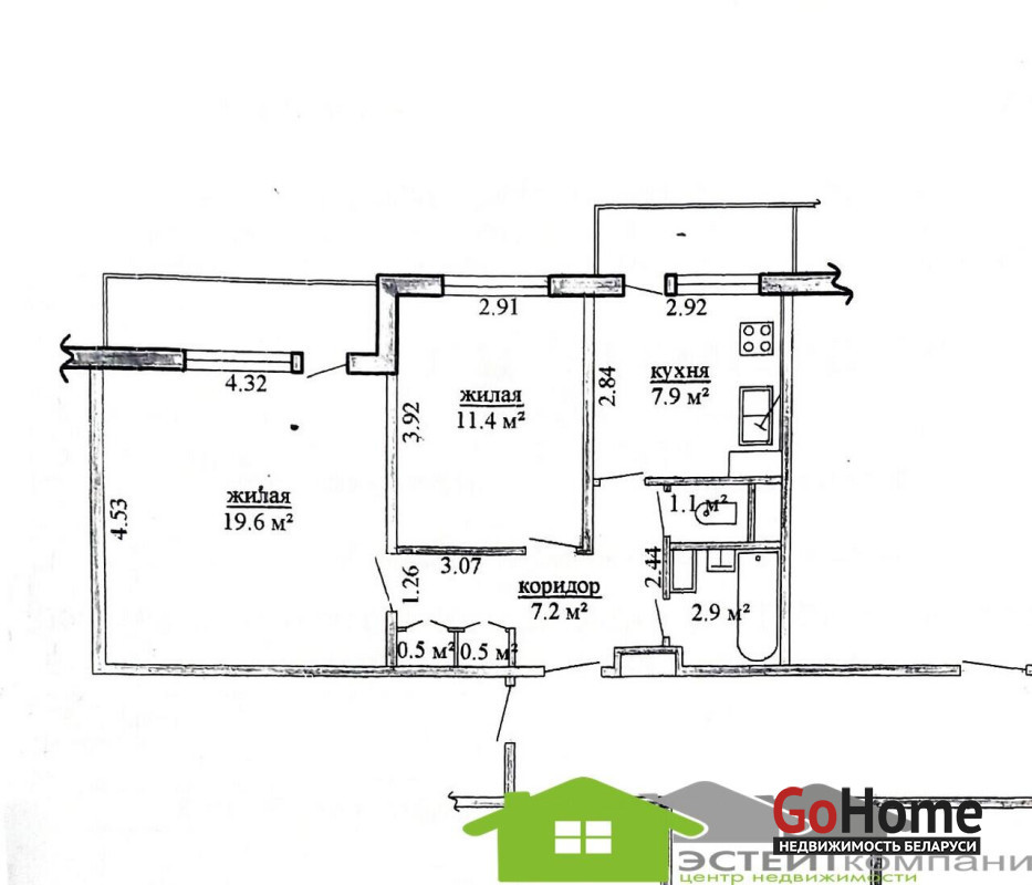
Продаётся 2-х комнатная квартира на 3 этаже 5- этажного монолитного дома с хорошей площадью и планировкой по ул. Коссовский тракт 80 (район "ЭНКА"). Отличная планировка: комнаты хорошей формы и площади, раздельный санузел, просторные балконы.
Общ. площадь квартиры- 51,1м.кв, жилая- 31м.кв., кухня- 7,9м.кв. В квартире два балкона, один с выходом из кухни (застеклен), второй из зала (не застеклен). Полы балкона выложены плиткой из мраморной крошки. Квартира с аккуратным косметическим ремонтом, очень чистая, сухая, светлая. В прихожей имеется встроенный шкаф и антресольные шкафчики для хранения. В комнатах и коридоре отреставрирован паркет (покрыт матовым лаком), на кухне линолеум. Потолки и стены ровные. Установлена новая, металлическая входная дверь. Окна-деревянные стеклопакеты в хорошем состоянии, выходят на сторону школы и детского сада.
В подъезде: на каждом этаже стоят дополнительные двери, отделяющие квартирную площадку от лестничной; мраморные лестничные ступени.
Рядом: магазины, школа, почта, аптека, поликлиника. В шаговой доступности находятся: зеленая зона с озером оборудованное пляжем, мангалами и футбольной площадкой.
Отличное транспортное сообщение.
Звоните! Организуем просмотр в удобное для Вас время с предварительной договорённостью! Возможен умеренный торг!
ООО "Эстейт Компани" - единственное агентство в г. Слоним на основании: лицензии Министерства юстиции Республики Беларусь 02240/394 от 26.02.2020г. УНП 693141368 Наш адрес: г. Слоним, пер. Дружбы 1. Договор на оказание риэлтерских услуг 31/4 от 18.03.2026 г.
Поможем продать вашу недвижимость для приобретения данного объекта.
Сопровождаем покупку по кредиту.

Получай предложения от собственников первым!
Вы нашли объявление на GoHome.by (ГоуХоум.бай)

УНП 693141368
Лицензия МЮ РБ №02240/394 от 26.02.2020

  • Номер объявления:
    799954
  • Дата обновления:
    19.03.2026
  • Область:
    Гродненская область
  • Район Беларуси:
    Слонимский район
  • Населенный пункт:
  • Улица, дом:
    Коссовский Тракт ул., 80
  • Комнат:
    2-комнатная
  • Площадь общая:
    51.1 м2
  • Площадь жилая:
    31 м2
  • Площадь кухни:
    7.9 м2
  • Этаж:
    3 из 5
  • Год постройки:
    1993
  • Раздельный санузел:
    Нет
  • Телефон:
    Нет
  • Договор:
    № 31/4 от 2026-03-18
Распечатать
Пожаловаться на объявление
Вам может быть интересно
2-комнатная, 41/26.4/6.1 м2, Этаж 5 из 5
г. Слоним, Брестская ул., 77/1
Продается 2х комнатная квартира на 5 этаже кирпичного дома по улице Брестская. В квартире тепло, уютно, сделан косметический ремонт. Квартира общей площадью 41 м.кв., жилая 26,4 м.кв, кухня 6,1.Дом расположен в обжитом с…
804
Дата обновления: 24.03.2026
56 550 руб
19 000$
1 380 руб/м²
463$/м²
2-комнатная, 50.5/28.4/9 м2, Этаж 1 из 2
г. Слоним, Полевая ул., 84
Продается 3- комнатная квартира в тихом и спокойном районе по ул. Полевая , на 1 этаже/ 2 этажного дома. 1990 года постройки. Площадь общая 50,5 м.кв., жилая 28,4 м.кв., кухня 9 м.кв. Квартира с хорошей планировкой, комн…
13
Дата обновления: 23.03.2026
65 480 руб
22 000$
1 300 руб/м²
436$/м²
2-комнатная, 46.9/29.4/6.1 м2, Этаж 4 из 5
г. Слоним, Комсомольская ул., 3
Продается 2к квартира по ул. Комсомольская 3. на 4/5 этаже. Квартира теплая и светлая, расположена в середине дома. Дом после капремонта (балконы укреплены, поменяны канализационные трубы). Площадь общая 46,9м2, жилая 2…
76
Дата обновления: 14.03.2026
63 990 руб
21 500$
1 360 руб/м²
458$/м²
2-комнатная, 51.2/33/- м2, Этаж 2 из 2
г. Слоним, Брестская ул., 151
Продается 2х комнатная квартира или меняется на однокомнатную на ул. Брестская 151. Квартира находится на втором этаже двухэтажного, кирпичного дома. Комнаты на разные стороны дома, что обеспечивает хорошую проветриваем…
71
Дата обновления: 12.03.2026
56 260 руб
18 900$
1 100 руб/м²
369$/м²
2-комнатная, 58.6/30/9.3 м2, Этаж 5 из 5, 1993 г.
г. Слоним, Коссовский Тракт ул., 102
Большая 2-комнатная квартира в Слониме, 2 балкона ️ Продаётся 2-комнатная квартира 58,6 кв.м в монолитном доме в г.Слоним: аккуратный ремонт, паркет, встроенный шкаф, два балкона и раздельный санузел. Район с развитой ин…
76
Дата обновления: 05.03.2026
96 590 руб
32 450$
1 650 руб/м²
554$/м²
2-комнатная, 55.8/30.3/8.9 м2, Этаж 3 из 4
г. Слоним, Семилетки 1-й ул., 22
Продается двухкомнатная квартира ул. 1-й Семилетки 22 на 3 этаже Площадь: 55,8 м2 жилая — 30,3 м2, кухня — 8,9 м2. Квартира с косметическим ремонтом, готова к проживанию. Хорошая планировка: комнаты расположены на две с…
155
Дата обновления: 18.02.2026
65 480 руб
22 000$
1 170 руб/м²
394$/м²
2-комнатная, 57.5/34.1/- м2, Этаж 1 из 1
г. Слоним, Комсомольская ул., 81
Продается половина дома с отдельным входом в статусе 2х.комнатной квартиры. Общая площадь 57,5кв,м. жилая 34,1кв.м. кухня 11,8кв.м. Отопление дома на газу, центральный водопровод, канализация, газ. В цокольном этаже нахо…
773
Дата обновления: 29.01.2026
23 510 руб
7 900$
410 руб/м²
137$/м²
2-комнатная, 43.8/27.7/6.2 м2, Этаж 3 из 3, 1959 г.
г. Слоним, Первомайская
Продается двухкомнатная квартира в историческом центре города Слоним, рядом две церкви, два костела 1770 г, и Пр. Девы Марии 1652 г. виден из окна квартиры вместе с частично сохранившейся древнейшей синагогой Европы,удоб…
787
Дата обновления: 18.09.2025
71 440 руб
24 000$
1 630 руб/м²
548$/м²
2-комнатная, 46/27.4/6.5 м2, Этаж 5 из 5, 1990 г.
г. Слоним, Брестская 81
Продается двухкомнатная квартира на улице Брестской. Сделан капитальный евроремонт. Заменена: сантехника, электропроводка, канализация, водопроводные трубы, газовая колонка. Санузел и ванная раздельные, квартира теплая, …
1619
82 570 руб
28 000$
1 790 руб/м²
609$/м²
2-комнатная, 42.3/27.8/- м2, Этаж 2 из 3, 1975 г.
г. Слоним, Брестская,65
2 комнатная квартира,жилая. Есть wifi Рядом почта,магазины,аптека. Тихий двор. Приходите,смотрите)звоните +375295968904 или на домашний 22086
3381