Купить участок, Байдаки, 12.9 соток

Просмотры: 23 всего, 24 за месяц, 24 за неделю
998 760 руб
или 350 000$
Описание

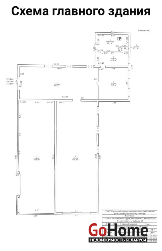
Многофункциональное комфортное помещение (под склад/производство/магазин).

Новое отапливаемое здание для склада, производства или магазина, отдельно стоящее, проф. освещение, высота потолков 4-5 м. Офис, гардеробная, санузел, котельная, горячая вода, наливной беспылевой теплый пол. Территория асфальтирована. Всё ограждено высоким забором и посадкой туй, ведётся круглосуточное видеонаблюдение со сдачей под охрану.

Хозяйственные постройки: хозблок 349 кв.м. (отапливаемый), пристройка 140 кв.м. (отапливаемая), сарай-пристройка 65 кв.м. (неотапливаемый), хозблок 86 кв.м. (не отапливаемый), навес 99 кв.м. всё это богатство расположено на участке в 12,9 сотки.

12,1 сотки можно взять в аренду.

Цена указана с НДС.

Без НДС цена обсуждается.

Получай предложения от собственников первым!
Вы нашли объявление на GoHome.by (ГоуХоум.бай)
  • Номер объявления:
    797221
  • Дата обновления:
    02.03.2026
  • Площадь участка:
    12.9 соток
  • Договор:
    № 4/1 от 19.12.2025
Распечатать
Пожаловаться на объявление