Купить коттедж, Мочаны, Жемчужный 3-ий пер., 10, 13 соток

Просмотры: 321 всего, 234 за месяц, 22 за неделю
  • Площадь участка:
    13 соток
  • Площадь общая:
    217 м2
  • Площадь жилая:
    154 м2
  • Площадь кухни:
    55 м2
  • Этажность:
    2
  • Год постройки:
    2024

512 830 руб
или 169 900$
Описание

Продается современный коттедж на берегу реки Вяча. Ваш идеальный формат жизни: 15 км от Минска и 100% природы.
Не просто дом, а готовая концепция жизни премиум-класса. Просыпайтесь под шум леса, а не под звук будильника. Это ваш личный курорт для жизни круглый год, всего в 15 минутах от столицы.
Почему это идеальное место?
Курортная локация: Дом расположен на побережье живописной реки Вяча. Ваш новый «дом» — это тишина, приватность и свежий воздух каждый день.
Близко к городу: Всего 15 км до Минска по хорошей асфальтированной дороге. Вы легко сможете совмещать уединенную загородную жизнь с динамикой мегаполиса.
Продуманная инфраструктура: Участок полностью подготовлен для комфортного проживания.
Ключевые преимущества дома и участка:
Участок 13 соток: Ровный, правильной формы. Идеальное пространство для ландшафтного дизайна, игр детей и отдыха с друзьями.
Главный дом 218 м2: Современная архитектура, плоская кровля, панорамные окна от бренда Salamander (76 мм). Высота потолков — почти 3 метра, что создает ощущение простора и свободы.
Летняя кухня(можно переоборудовать в банный комплекс) 140 м2: Отдельное просторное сооружение с террасой и всеми коммуникациями. Готовьте шашлык, устраивайте вечеринки, не беспокоя домочадцев.
Технологии и надежность:
Фундамент: мощный свайно-ростверковый.
Стены: газосиликатные блоки 400 мм + утепленный и оштукатуренный фасад.
Перекрытия: монолитный железобетон — гарантия прочности и тишины.
Отопление электро: экономичный электрический котел Proterm 24 кВт + подготовленные документы на льготный тариф. По улице проходит газ — есть возможность перехода на газовое отопление.
Комфорт: теплые водяные полы, система вентиляции и кондиционирования.
Коммуникации: центральное водоснабжение, локальная канализация.
Эргономичная планировка для большой семьи:
1-й этаж: Просторная кухня-гостиная с выходом во двор — сердце вашего дома. Гостевая комната, кладовая, котельная и большой санузел.
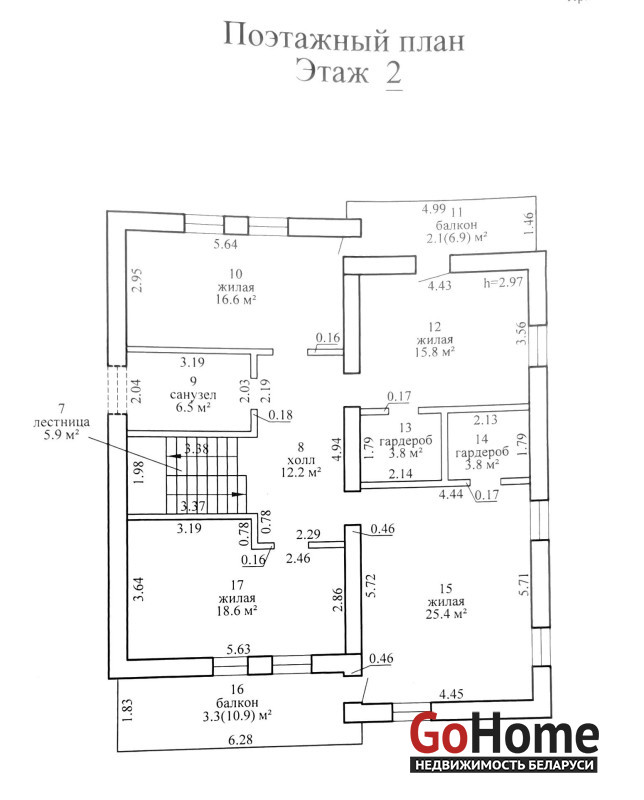
2-й этаж: Три уютные спальни (две с гардеробными), кабинет для работы и два балкона с потрясающими видами на природу. Идеальное пространство для каждого члена семьи.
Этот дом для вас, если вы цените:
Качество: Все конструкции возведены по современным технологиям с использованием лучших материалов.
Комфорт: Продуманная планировка и готовые инженерные системы.
Выгоду: Дом 2024 года постройки с полным пакетом документов. Чистая продажа. Конкурс - быстрый выход не сделку!
Уединение: Свой мир на побережье реки, окруженный лесом, где вы отдыхаете душой и телом.
Не ищите компромиссов. Здесь есть всё.
Возможность покупки в кредит.
Готовы увидеть свой будущий дом?
Звоните прямо сейчас, чтобы договориться о просмотре.

Получай предложения от собственников первым!
Вы нашли объявление на GoHome.by (ГоуХоум.бай)
специалист Риабай ЧУП
  • Номер объявления:
    792412
  • Дата обновления:
    12.03.2026
  • Площадь участка:
    13 соток
  • Площадь общая:
    217 м2
  • Площадь жилая:
    154 м2
  • Площадь кухни:
    55 м2
  • Год постройки:
    2024
Распечатать
Пожаловаться на объявление