Аренда офиса, Минск, Фабрициуса ул., 8/Б, 166.5 кв.м.

Просмотры: 224 всего, 225 за месяц, 166 за неделю
  • Площадь:
    166.5 2

39,00 руб/м2
или 14€/м2
6 493,50 руб
или 2 331€
Изменения цены
39$
04.02.2026 г.
39$
03.02.2026 г.
39$
02.02.2026 г.
39$
01.02.2026 г.
39$
31.01.2026 г.
39$
30.01.2026 г.
39$
29.01.2026 г.
39$
28.01.2026 г.
14$
26.01.2026 г.
Описание

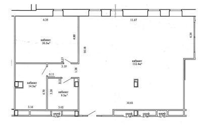
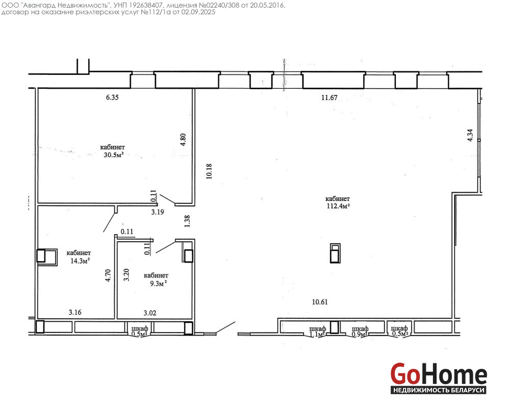
Предлагаем Вашему вниманию офисное помещение площадью 166.5 м2, расположенное в административном здании по адресу: г. Минск, ул. Фабрициуса, 8Б/1.
Общая характеристика объекта:
офис представляет из себя:
-большое пространство площадью 112.4 м2
-два кабинета площадью 30.5 и 9.3 м2
-комната приема пищи 14.3 м2;
в кабинетах выполнен хороший ремонт;
санузел находится на этаже;
круглосуточная охрана, видеонаблюдение;
доступ в здание осуществляется 24/7.
Техническая база:
действующая приточно-вытяжная вентиляция;
установлен кондиционер;
высокоскоростной интернет (провайдеры: МТС, Деловая сеть, IP TELCOM);
присутствуют 2 лифта: пассажирский и грузовой;
В ставку аренды включены эксплуатационные расходы и НДС.
Развитая инфраструктура: объект расположен в 6-ти минутах ходьбы от ст. м. “Институт Культуры”, 12 минут пешком до ст. м. “Вокзальная”. В шаговой доступности находятся остановки общественного транспорта. Вблизи здания расположены пункты общественного питания, кофейни, продуктовые магазины, отделение банка, салоны красоты, медицинские центры и т.д.
Арендатор не оплачивает услуги агентства!
Звоните прямо сейчас!

Вы нашли объявление на GoHome.by (ГоуХоум.бай)
  • Номер объявления:
    791656
  • Дата обновления:
    26.01.2026
  • Область:
    Минская область
  • Район Беларуси:
    Минский район
  • Населенный пункт:
  • Район:
    Московский район
  • Улица, дом:
    Фабрициуса ул., 8/Б
  • Станция метро:
    Институт культуры
  • Тип объекта:
  • Площадь:
    166.5 м2
  • Санузел:
    Нет
  • Телефон:
    Нет
  • Договор:
    № 112/1а от 2025-09-02
Распечатать
Пожаловаться на объявление
Вам может быть интересно
Помещений: 0, 215.4 м2
г. Минск, Независимости просп., 28
Ленинский район
Октябрьская
Сдается уникальное помещение в аренду в центре города с отдельным входом 1 и 2 й этаж 6 этажного кирпичного дома под сферу услуг, офис, детский развивающий центр. Рядом метро Купаловская- Октябрьская, въезд со стороны К…
266
Дата обновления: 04.02.2026
9 268,7 руб
3 231$
43,0 руб/м²
15$/м²
Помещений: 0, 55 м2, 2014 г.
г. Минск, Монтажников ул., 9
Фрунзенский район
Сдается комфортный офис в БЦ класса B: ул. Монтажников, 9 Ищете идеальное место для вашего бизнеса? Предлагаем в аренду отличное офисное помещение в современном бизнес-центре (МФК) на улице Монтажников, 9. Ключевые преим…
806
Дата обновления: 04.02.2026
1 104,4 руб
385$
20,1 руб/м²
7$/м²
Помещений: 0, 26 м2, 2014 г.
г. Минск, Монтажников ул., 9
Фрунзенский район
ООО «ВСП недвижимость-Инвест» Агентство недвижимости УНП: 193594828 Лицензия: № 02240/430 МЮ РБ, 18.11.2021
301
Дата обновления: 04.02.2026
522,1 руб
182$
20,1 руб/м²
7$/м²
Помещений: 0, 181.51 м2
г. Минск, Долгобродская ул., 16
Партизанский район
Тракторный завод
В БЦ D16 освобождается помещение на 1ом этаже.Площадь (в целом - 181,51 кв.м.):1-ый этаж: 122,81 кв.м.;антресоль: 58,7 кв.м. Ставка - 15 е. за 1 кв.м. + НДС (в целом за помещение - 2 722,65 е. + НДС) Помещение оснащено: …
821
Дата обновления: 04.02.2026
9 209,8 руб
2 723€
50,7 руб/м²
15€/м²
Помещений: 0, от 16 до 165.8 м2, 2012 г.
г. Минск, Бегомльская ул., 21
Центральный район
Офисные помещения площадью от 16 до 90 кв.м., располагаются по адресу: ул. Бегомльская, 21. В помещениях выполнен качественный ремонт. Подведены коммуникации: центральное отопление, электроснабжение, оптоволокно, пожарна…
190
Дата обновления: 04.02.2026
от 384,0 руб
от 128€
24,0 руб/м²
8€/м²
Помещений: 0, от 45 до 709 м2, 2016 г.
г. Минск, Мстиславца ул., 9
Первомайский район
Восток
Если вы хотите, чтобы клиенты воспринимали ваш бизнес серьёзно — начните с адреса.
1028
Дата обновления: 04.02.2026
от 2 250,0 руб
от 765€
50,0 руб/м²
17€/м²
Помещений: 0, 273 м2, 2016 г.
г. Минск, Жуковского ул., 11/А
Октябрьский район
Ковальская Слобода
Предлагаем в аренду на длительный срок административное помещение (офис) в Бизнес-центре по ул. Жуковского, 11А, который располагается практически в самом центре г. Минска. Помещение с ремонтом, общей площадью 273 м.кв…
1773
Дата обновления: 03.02.2026
7 098,0 руб
2 457€
26,0 руб/м²
9€/м²
Помещений: 4, 80.9 м2, Этаж 4 из 5, 2008 г.
г. Минск, Соломенная, 23А
Партизанский район
Пролетарская
Офис расположен на четвёртом этаже современного Бизнес-центра – класса А в центральной части города. Статусная локация. Есть юридический адрес. Помещение 80.9 м2, разделено на 4 комнаты. Выполнен новый современный ремон…
440
Дата обновления: 03.02.2026
3 712,5 руб
1 294$
45,9 руб/м²
16$/м²
Помещений: 0, от 48 до 2600 м2, 2020 г.
г. Минск, Интернациональная ул., 38
Центральный район
Немига
Если вы хотите, чтобы офис работал не только как помещение, но как инструмент репутации, продаж и доверия, — посмотрите, что предлагает Capital Palace.
1867
Дата обновления: 03.02.2026
от 2 928,0 руб
от 1 008€
61,0 руб/м²
21€/м²
Помещений: 2, 25 м2, Этаж 1 из 1, 2011 г.
г. Минск, Немига, 3/А
Центральный район
Немига
Сдается помещение 25,1кв.м. в центре г. Минска ул. Немига, 3А. Располагается во дворе улиц Комсомольская и Немига, отдельный вход, первый этаж, пол - плитка, стены выкрашены в белый цвет, есть три окна ПВХ - возможно раз…
264
Дата обновления: 02.02.2026
1 219,0 руб
425$
48,8 руб/м²
17$/м²