Аренда помещения, Фанипольский с/с, от 1416 до 5952 кв.м.

Просмотры: 4 всего, 5 за месяц, 5 за неделю
  • Площадь:
    от 1416 до 5952 2
  • Год постройки:
    2025

24,15 руб/м2
или 7€/м2
от 34 196,40 до 143 740,80 руб
или от 9 912 до 41 664€
Описание

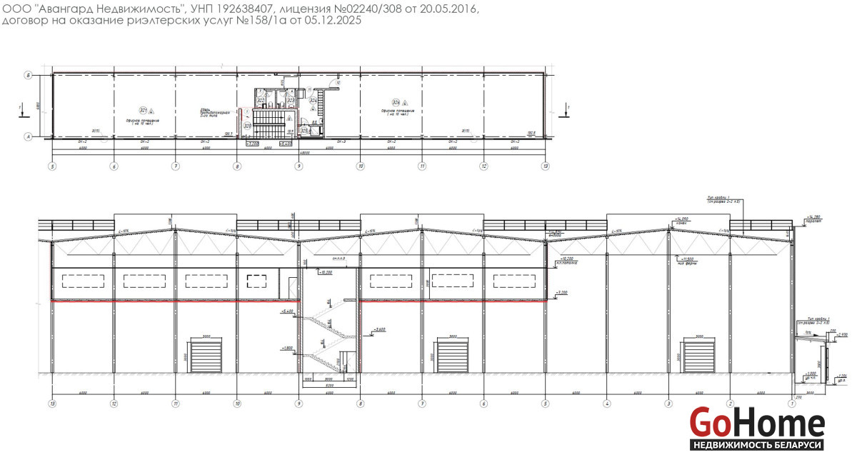
Предлагаем Вашему вниманию абсолютно новый складской комплекс класса «А», расположенный по адресу: Фанипольский с/с, 119. Объект на стадии получения техпаспорта, однако полностью готов для Ваших задач — въезжать можно прямо сейчас!
Объект имеет отличное оснащение в соответствии с классом, большая высота по внутреннему, планировка свободная — каждая секция без колонн, для удобства логистики склад оснащён как рампами 120, так и нулевыми въездами для крупногабаритного транспорта.
Характеристики объекта + инженерные коммуникации:
- Высота 11.5 м до низа ферм, 14 м полная высота;
- Возможно деление площади кратно секциям;
- Площадь одной секции 1416 м2;
- Доступная площадь 2976 м2 (включая 144 м2 АБК)
- Мощность более 500 кВт;
- 4 рампы 120, ворота 3*3 м;
- 4 рампы нулевые, ворота 4.5*4.5 м;
- Пол наливной антипыль 8 тонн/м2;
- Пожарная система сплинкерная, потолочное крепление;
- Собственная газовая котельная;
- Объект охраняемый круглосуточно, видеонаблюдение;
- Два заезда со шлагбаумом;
- Внутренняя собственная парковка;
Месторасположение:
Объект расположен в непосредственной близости к Брестской трассе, в 2-х км от Фаниполя, в 13-ти км от МКАД, в 2.5 км от МКАД-2; имеет удобные подъездные пути как для легкового, так и для крупнотоннажного транспорта; неполадёку в соседствующем складском комплексе расположен буфет, так же есть продовольственный магазин в пяти минутах на авто.
Звоните!

Вы нашли объявление на GoHome.by (ГоуХоум.бай)
  • Номер объявления:
    785879
  • Дата обновления:
    16.12.2025
  • Область:
    Минская область
  • Населенный пункт:
    Фанипольский с/с
  • Улица, дом:
  • Тип объекта:
  • Площадь:
    от 1416 до 5952 м2
  • Год постройки:
    2025
  • Санузел:
    Нет
  • Телефон:
    Нет
  • Договор:
    № 158/1а от 2025-12-05
Распечатать
Пожаловаться на объявление