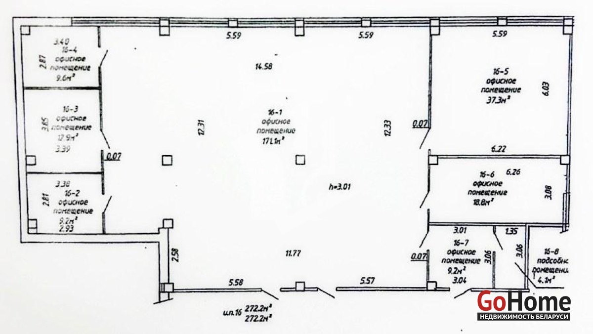
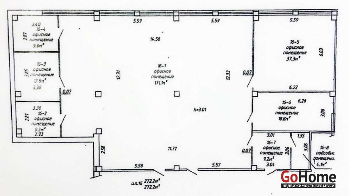
Аренда офиса, Минск, Жуковского ул., 11/А, 272.2 кв.м.

Просмотры: 615 всего, 53 за месяц, 10 за неделю
  • Площадь:
    272.2 2
  • Год постройки:
    2016

26,06 руб/м2
или 9$/м2
7 093,53 руб
или 2 450$
Описание

На 1-этаже здания магазин «Соседи», аптека и фитнес-клуб. Рядом множество кафе, продовольственных и промышленных магазинов. Хорошая транспортная доступность.
Офисное помещение находится на 6 этаже.
Есть парковка, пространство разделено на отдельные, изолированные кабинеты, переговорные комнаты, гардероб, кухню. Сан узлы на этаже. Арендные каникулы возможны. Есть возможность размещения наружней рекламы на фасаде. Доступ 24/7. Помещение готово к переезду.
- приточно-вытяжная вентиляция;
- кондиционер;- разведены электрические и слаботочные сети;- скоростной интернет;- видеонаблюдение;- два бесшумных скоростных лифта "Kone";- система СКУД (систем контроля доступа).
Больше объявлений тут: www.instagram.com/garant.arenda
Напишите нам в удобный для Вас мессенджер:
Viber | Telegram | WhatsApp
Ответим на Ваши вопросы, предоставим всю необходимую дополнительную информацию.
ООО «Артель Недвижимость»
УНП 193820882
Лицензия Министерства Юстиции №48250000081913 06.03.2025 г.
Договор № 232/2а от 24.10.2025

Вы нашли объявление на GoHome.by (ГоуХоум.бай)

УНП 193609339
Лицензия № 02240/436 от 03.02.2022 г. Минюст РБ

  • Номер объявления:
    778423
  • Дата обновления:
    24.10.2025
  • Область:
    Минская область
  • Район Беларуси:
    Минский район
  • Населенный пункт:
  • Район:
    Октябрьский район
  • Улица, дом:
    Жуковского ул., 11/А
  • Станция метро:
    Ковальская Слобода
  • Тип объекта:
  • Площадь:
    272.2 м2
  • Год постройки:
    2016
  • Санузел:
    Нет
  • Телефон:
    Нет
  • Договор:
    № 232/2а от 2025-10-24
Распечатать
Пожаловаться на объявление
Вам может быть интересно
Помещений: 2, 25 м2, Этаж 1 из 1, 2011 г.
г. Минск, Немига, 3/А
Центральный район
Немига
Сдается помещение 25,1кв.м. в центре г. Минска ул. Немига, 3А. Располагается во дворе улиц Комсомольская и Немига, отдельный вход, первый этаж, пол - плитка, стены выкрашены в белый цвет, есть три окна ПВХ - возможно раз…
282
Дата обновления: 05.12.2025
1 230,8 руб
425$
49,2 руб/м²
17$/м²
Помещений: 0, от 150 до 351.5 м2, 2024 г.
г. Минск, Ковалевской пер., 42/В
Московский район
Михалово
Аренда современного офисного пространства Офис, который работает на ваш имидж и эффективность.На 3-ем этаже отдельно стоящего здания — просторное помещение 351,5 м2 формата open space, готовое к въезду. Почему этот офис…
923
Дата обновления: 05.12.2025
от 4 057,5 руб
от 1 200€
27,1 руб/м²
8€/м²
Помещений: 0, от 18.5 до 49 м2, 2009 г.
г. Минск, Филимонова ул., 15
Партизанский район
Аренда помещения под офис, ул. Филимонова, 15 Помещения площадью 18,5 и 49 кв.м., располагаются по адресу: ул. Филимонова, 15. Помещения с качественным ремонтом полностью готовы под офисную деятельность. Подведены все не…
460
Дата обновления: 05.12.2025
от 481,0 руб
от 167€
26,0 руб/м²
9€/м²
Помещений: 4, от 24.5 до 55.6 м2, Этаж 1 из 3, 2015 г.
г. Минск, ул. Марьевская, д. 5А
Партизанский район
Победы пл.
Отдельно стоящее здание в центре недалеко от станции метро площадь Победы, отличное транспортное сообщение, хорошие подъездные пути, парковка, современный ремонт, мебель, кондиционер, просторный санузел на каждом этаже, …
2511
Дата обновления: 05.12.2025
от 567,7 руб
от 196$
23,2 руб/м²
8$/м²
Помещений: 0, 47.2 м2, 2008 г.
г. Минск, Шафарнянская ул., 11
Первомайский район
Уручье
Сдается кабинет площадью 47,2 кв.м. на 4‑м этаже бизнес‑центра «Порт». · Формат open space - удобно для работы команды · Оснащение: мебель (столы, стулья, шкафы, тумбы), кондиционер · Светлое помещение с большими окна…
34
Дата обновления: 04.12.2025
1 915,4 руб
566€
40,6 руб/м²
12€/м²
Помещений: 3, 72 м2, Этаж 14 из 14, 2016 г.
г. Минск, Проспект Жукова,29
Московский район
Грушевка
Бизнес-центр «Красавiк» ‒ современный 14-этажный офисный комплекс с развитой инфраструктурой, современным дизайном и высокими технологиями. Свободная площадь: офисный блок S 72,3 м2, разделен на 3 отдельных офисных помещ…
4100
Дата обновления: 04.12.2025
2 921,8 руб
864€
40,6 руб/м²
12€/м²
Помещений: 2, от 27 до 34 м2, Этаж 1 из 2, 2004 г.
г. Минск, ул. Харьковская, д. 90
Фрунзенский район
Пушкинская
Офисные помещения в центре площадью 27,2 м2 и 34,6 м2 c отдельными входами и удобным транспортным подлъездом, расположены напротив остановки общественного транспорта «Харьковская» на пересечении проспекта Пушкина – ул. …
13339
Дата обновления: 04.12.2025
от 1 095,7 руб
от 324€
40,6 руб/м²
12€/м²
Помещений: 1, 27.5 м2, Этаж 6 из 6, 2005 г.
г. Минск, Некрасова, 114
Советский район
Якуба Коласа пл.
Сдается помещение 27,5кв.м. состоящий из двух кабинетов (офис) на 6-ом этаже БЦ Капитал ул. Некрасова,114 - класс B.  В наличии есть 5 кабинетов на выбор от 13,1 кв.м. до 27,5 кв.м.,  хороший ремонт, большие окна - стекл…
518
Дата обновления: 03.12.2025
637,2 руб
220$
23,2 руб/м²
8$/м²
Помещений: 1, от 32 до 80 м2, Этаж 1 из 14, 2014 г.
г. Минск, ул. Тимирязева, д. 72
Центральный район
Предлагаем светлое чистое просторное , с юр адресом на 1 этаже по ставке 10 евро с ндс в 14-и этажном Бизнес Центре «ДЕЛЬТА» по ул. Тимирязева, 72. Кабинетная планировка. Помещение 32,9, кв м. + 47,8 кв м , о…
4012
Дата обновления: 02.12.2025
от 1 081,9 руб
от 320€
33,8 руб/м²
10€/м²
Помещений: 0, 88.2 м2, 2008 г.
г. Минск, Шафарнянская ул., 11
Первомайский район
Уручье
Сдается кабинет площадью 88,2 кв.м. на 4‑м этаже бизнес‑центра «Порт». · Просторное помещение, разделенное раздвижными дверьми на две зоны · Окна выходят на восточную сторону, с видом на парк · Внутри установлены шкаф…
71
Дата обновления: 02.12.2025
3 579,2 руб
1 058€
40,6 руб/м²
12€/м²