Аренда торгового помещения, Минск, Куйбышева ул., 40, от 4 до 32 кв.м.

Просмотры: 287 всего, 1 за месяц, 1 за неделю
  • Площадь:
    от 4 до 32 2
  • Год постройки:
    1999

36,00 руб/м2
или 36€/м2
от 144,00 до 1 152,00 руб
или от 144 до 1 152€
Изменения цены
36$
07.02.2026 г.
36$
15.01.2025 г.
36$
14.01.2025 г.
36$
13.01.2025 г.
36$
12.01.2025 г.
36$
11.01.2025 г.
36$
10.01.2025 г.
36$
09.01.2025 г.
36$
08.01.2025 г.
36$
07.01.2025 г.
36$
06.01.2025 г.
36$
04.01.2025 г.
36$
03.01.2025 г.
36$
02.01.2025 г.
36$
01.01.2025 г.
36$
31.12.2024 г.
36$
30.12.2024 г.
36$
29.12.2024 г.
11$
27.12.2024 г.
Описание

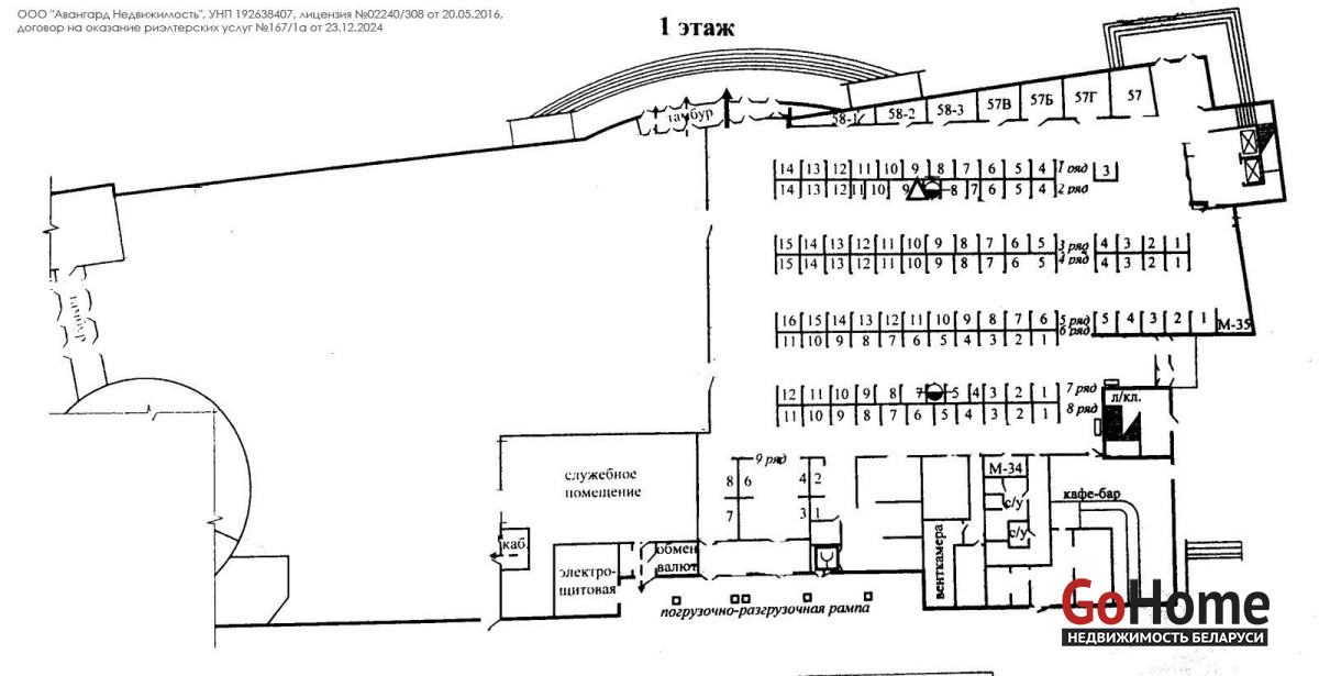
Предлагаем Вашему вниманию торговые павильоны, расположенные по адресу: г. Минск, ул. Куйбышева, 40 (ТЦ «Паркинг»).
Общие характеристики объектов:
1-й этаж здания;
в аренду доступны торговые павильоны площадью от 4 м2;
возможно объединение нескольких рядом стоящих помещений;
режим работы - 10:00-21:00;
круглосуточная охрана;
имеется зона разгрузки.
Якорным арендатором в торговом центре «Паркинг» является магазин «Ами Мебель», что формирует активный трафик посетителей на протяжение всего рабочего дня. Также среди арендаторов представлены точки розничной торговли и сферы услуг, а именно: медицинская одежда, парфюмерная продукция, одежда и аксессуары, посуда, ремонт техники, обмен валют, парикмахерские услуги и т.д.
Важно! Ставка аренды указана с учетом НДС и коммунально-эксплуатационных платежей.
Инфраструктура:
Торговый центр «Паркинг» находится в центральной части г. Минска. Удобная транспортная доступность. В шаговой доступности находится Комаровский рынок, ТЦ “Монетка”, множество пунктов общественного питания и т.д.
Помещения подойдут для размещения объектов розничной торговли, сферы услуг, склада.
Более подробную информацию о помещениях уточняйте у агента.
Звоните!

Вы нашли объявление на GoHome.by (ГоуХоум.бай)
  • Номер объявления:
    729077
  • Дата обновления:
    27.12.2024
  • Область:
    Минская область
  • Район Беларуси:
    Минский район
  • Населенный пункт:
  • Район:
    Советский район
  • Улица, дом:
    Куйбышева ул., 40
  • Станция метро:
    Якуба Коласа пл.
  • Тип объекта:
  • Площадь:
    от 4 до 32 м2
  • Год постройки:
    1999
  • Санузел:
    Нет
  • Телефон:
    Нет
  • Договор:
    № 167/1а от 2024-12-23
Распечатать
Пожаловаться на объявление
Вам может быть интересно
Помещений: 0, 115.2 м2, 2016 г.
г. Минск, Киселева ул., 17
Центральный район
Победы пл.
Предлагаем в аренду торговое помещение по адресу: ул. Киселева, 17. Расположение: Находится в новом густонаселенном районе на первой линии, на первом этаже современного жилого комплекса. 5 минут до станции метро «Площад…
9
Дата обновления: 06.02.2026
8 241,4 руб
2 880$
71,5 руб/м²
25$/м²
Помещений: 1, 23.4 м2, Этаж 1 из 2, 2011 г.
г. Минск, Немига, 3А
Центральный район
Немига
Сдаётся помещение 23,4 кв.м. под услуги, магазин. Отдельный вход, отдельно электричество, без центрального отопления, без санузла, без воды.
300
Дата обновления: 06.02.2026
1 272,3 руб
445$
54,4 руб/м²
19$/м²
Помещений: 0, от 16 до 128 м2, 2021 г.
г. Минск, Скорины ул.
Восток
Сдаются в аренду торговые помещения площадью от 16 м.кв на 1-м этаже ТЦ "Маяк" на выгодных условиях. Помещения с ремонтом, есть возможность подключения воды. Большая парковка. активный трафик. Видеонаблюдение. ООО «Партн…
1190
Дата обновления: 06.02.2026
от 229,0 руб
от 80$
14,3 руб/м²
5$/м²
Помещений: 0, 88 м2, 2000 г.
г. Минск, Пономаренко ул., 34
Фрунзенский район
Спортивная
Предлагаем в аренду торговое помещение в густонаселенном жилом районе по адресу: ул. Пономаренко, 34. Расположение: Находится в новом густонаселенном районе на первой линии, на первом этаже. Это идеальное место для ваше…
124
Дата обновления: 05.02.2026
Помещений: 0, 42.8 м2
г. Минск, Московская ул., 7
Октябрьский район
Институт культуры
Предлагаем Вашему вниманию светлое торговое помещение с хорошим ремонтом в центре города, вблизи ст.м. Институт Культуры, по адресу: ул. Московская, 7. Объект имеет площадь 42.8 м2 и хорошо подойдёт как для сферы услуг, …
122
Дата обновления: 05.02.2026
2 597,1 руб
770€
60,7 руб/м²
18€/м²
Помещений: 0, 48.8 м2, 2023 г.
г. Минск, Жореса Алфёрова ул., 9
Октябрьский район
Помещение в новостройке с хорошим ремонтом и отдельным входом, по адресу ул. Жореса Алфёрова, 9 в активно заселяющемся квартале "Западная Европа" комплекса "Минск-Мир" Основные преимущества:- Площадь 48,8 м2, высота пото…
121
Дата обновления: 05.02.2026
3 025,6 руб
3 026€
62,0 руб/м²
62€/м²
Помещений: 0, от 76 до 147 м2, 1999 г.
г. Минск, Немига ул.
Центральный район
Немига
Сдаются в аренду торговые помещения, в торговом центре- метро Немига! Отличные, премиальные, помещения в топовой локации! В окружении Бутиков и выставочных шоурумов, в самом культурно- историческом центре города Минска, …
4489
Дата обновления: 04.02.2026
от 1 739,6 руб
от 608$
22,9 руб/м²
8$/м²
Помещений: 0, 76 м2, 1999 г.
г. Минск, Немига ул.
Центральный район
Немига
Магазин в торговом центре на Немиге! Выходит витрина магазина прямо на улицу Немигу. Отличная территория с высоким трафиком, в окружении бутиков и шоурумов. Есть подсобные, складские помещения, отдельные санузлы, скорост…
1616
Дата обновления: 04.02.2026
3 075,0 руб
912€
40,5 руб/м²
12€/м²
Помещений: 0, 320 м2
г. Минск, Маркса ул., 25
Ленинский район
Купаловская
Торговое помещение 320 м2 занимает 1-й и цокольный этажи жилого дома, имеющего выгодное расположение: центр города, высокий пешеходный и автомобильный трафик, рядом метро (менее 5 мин) и остановки общественного транспорт…
200
Дата обновления: 04.02.2026
Помещений: 0, 170 м2
г. Минск, Маркса ул., 25
Ленинский район
Купаловская
Торговое помещение 170 м2 занимает 1-й и цокольный этажи жилого дома, имеющего выгодное расположение: центр города, высокий пешеходный и автомобильный трафик, рядом метро (менее 5 мин) и остановки общественного транспорт…
146
Дата обновления: 04.02.2026