Аренда торгового помещения, Барановичи, пр.Советский, 19, от 18 до 125 кв.м.

Просмотры: 68507 всего, 57 за месяц, 14 за неделю
  • Помещений:
    3
  • Площадь:
    от 18 до 125 2
  • Этаж:
    1 из 1
  • Год постройки:
    1980

Договорная
Описание

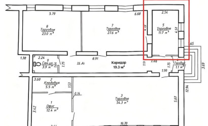
Сдаются в аренду торговые помещения( 125 м кв., 24,5 м.кв , 36м.кв, 24м.кв и 18м.кв) по проспекту Советский 19. Помещения расположены на 1 этаже здания(встроенно-пристроенного типа). Общая площадь торгового объекта составляет 378 м2 (состоит из отдельных залов). В ТЦ хорошие условия, имеется комната отдыха для персонала (оснащена индивидуальными шкафами для верхней одежды, кухней(микроволновая печь, холодильник, чайник), два санузла для персонала, складские шкафы ролетного типа), порядок и чистота, (работает персонал по уборке). Спальный район, современный ремонт, хорошая проходимость. Стоимость договорная.

Вы нашли объявление на GoHome.by (ГоуХоум.бай)
Татьяна Собственник
  • Номер объявления:
    449863
  • Дата обновления:
    12.01.2026
  • Область:
    Брестская область
  • Район Беларуси:
    Барановичский район
  • Населенный пункт:
  • Улица, дом:
    пр.Советский, 19
  • Тип объекта:
  • Помещений:
    3
  • Площадь:
    от 18 до 125 м2
  • Этаж:
    1 из 1
  • Год постройки:
    1980
  • Санузел:
    Есть
  • Телефон:
    Есть
Распечатать
Пожаловаться на объявление
Вам может быть интересно
Помещений: 1, 33.1 м2, Этаж 1 из 2, 2017 г.
г. Барановичи, Текстильная, 14а
Торговый центр в г. Барановичи по адресу ул. Текстильная 14А. Общая площадь объекта – 4515,2 кв. м. Нормируемая площадь здания - 3798,5 кв. м. Парковка – 150 машиномест. Краткая информация об арендаторах 1-го этажа: - п…
18352
Дата обновления: 29.04.2026
Помещений: 0, 563.3 м2
г. Барановичи, Притыцкого ул., 77
В аренду предлагается отдельно стоящее строение на территории Универсального рынка в центре города. Расположение на действующей торговой площадке гарантирует стабильный поток покупателей и высокую проходимость. Характери…
146
Дата обновления: 12.03.2026
16 741,3 руб
≈5 070€
29,7 руб/м²
9€/м²
Помещений: 0, 245 м2
г. Барановичи, Притыцкого ул., 77
В аренду предлагается просторное помещение в отдельно стоящем строении на территории Универсального рынка в центре города. Расположение на действующей торговой площадке гарантирует стабильный поток покупателей и высокую …
229
Дата обновления: 25.02.2026
7 281,4 руб
≈2 205€
29,7 руб/м²
9€/м²
Помещений: 1, 11.7 м2, Этаж 1 из 2
г. Барановичи, Комсомольская, 22
Сдается в аренду офисное помещение площадью 11.7 м², расположенное на 1-ом этаже административно-торгового здания по ул. Комсомольская, 22. Локация с высоким пешеходным трафиком. Оживленное место, в шаговой доступности о…
232
Дата обновления: 28.01.2026
362,9 руб
≈129$
31,0 руб/м²
11$/м²
Помещений: 0, 259.5 м2, Этаж 2 из 2
г. Барановичи, Промышленная, 7Б/4
Сдается в аренду административно-торговое помещение на втором этаже с отдельным входом. Мы предлагаем Вам светлое и просторное помещение с качественным ремонтом, готовое к незамедлительному использованию. Помещение своб…
243
Дата обновления: 23.01.2026
2 195,4 руб
≈779$
8,5 руб/м²
3$/м²
Помещений: 1, 400 м2, Этаж 1 из 1, 1996 г.
г. Барановичи, Слонимское шоссе 48В
Сдаём холодный склад .Удобный подъезд с М1. Высокие потолки, ровный бетон. Собственная электроподстанция. Круглосуточный доступ. Склад сдается для хранения товаров, оборудования или материалов, а также производственных н…
1773
Дата обновления: 19.12.2025
2 800,0 руб
≈800€
7,0 руб/м²
2€/м²
Помещений: 1, 500 м2, Этаж 1 из 1, 1996 г.
г. Барановичи, Слонимское шоссе 48В
Сдаём холодный склад .Удобный подъезд с М1. Высокие потолки, ровный бетон. Собственная электроподстанция. Круглосуточный доступ. Склад сдается для хранения товаров, оборудования или материалов, а также производственных н…
2178
Дата обновления: 19.12.2025
3 500,0 руб
≈1 000€
7,0 руб/м²
2€/м²
Помещений: 0, 224.1 м2, 1 эт., 2006 г.
г. Барановичи, Брестская, 281А
Сдается в аренду коммерческое помещение в г. Барановичи по адресу: ул. Брестская, 281а (р-н Третьяки-2). Объект расположен в спальном районе. Общая площадь арендуемого помещения (цокольный этаж) – 224.1 м², участок земли…
30
Дата обновления: 04.12.2025
2 527,8 руб
≈896$
11,3 руб/м²
4$/м²
Помещений: 3, 175 м2, Этаж 2 из 2, 1991 г.
г. Барановичи, Барановичи, ул. Проминского,20
Сдаётся в аренду швейное производство с оборудованием: швейные машины 3-х нитки, 4-х нитки, 5-ти нитки, 2-х игольчатые, челночные, утюг промышленный, инструмент для установки кнопок (цех 115 м. кв.) + офис 10 м.кв. + скл…
1255
Дата обновления: 22.09.2025
10,0 руб
≈4€
0,1 руб/м²
0€/м²
Помещений: 0, от 30 до 98.7 м2
г. Барановичи, Притыцкого ул., 77
Сдаются в аренду складские помещения в г. Барановичи по ул. Притыцкого, 77. Склады расположены в отдельно стоящем одноэтажном здании с отдельным входом и собственной рампой. В помещение предоставлен круглосуточный доступ…
558
Дата обновления: 13.09.2025
от 297,3 руб
≈от 90€
9,9 руб/м²
3€/м²